
BP900900对于那种需要大的目标区域和高频反应的动态应用来说是非常合适的,比如奔跑和跳跃
.jpg)
|
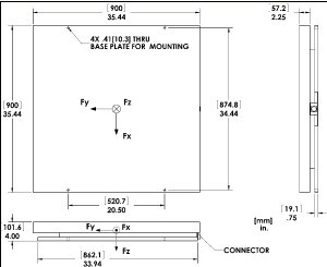
尺寸
(宽x长x高) |
35.44 x 35.44 x 4 in |
安装硬件 |
推荐 | ||||||
|
重量 |
90 lb. |
传感元件 |
应变片桥 | ||||||
|
通道 |
Fx, Fy, Fz, Mx, My, Mz |
放大器 |
需要 | ||||||
|
顶板材料 |
Composite |
模拟输出 |
6 Channels | ||||||
|
温度范围 |
0 to 125°F |
数字输出 |
无 | ||||||
|
激发电压 |
最大10V |
串扰 |
所有通道都< 2% | ||||||
|
Fx, Fy, Fz
迟滞 |
± 0.2% 满量程输出 |
Fx, Fy, Fz
非线性 |
± 0.2% 满量程输出 | ||||||
|
通道 |
Fx |
Fy |
Fz |
单位 |
Mx |
My |
Mz |
单位 | |
|
载荷 |
500 |
500 |
1000 |
lb |
18000 |
18000 |
9000 |
in-lb | |
|
灵敏度 |
3 |
3 |
0.75 |
μv/v-lb |
0.105 |
0.105 |
0.223 |
μv/v-in-lb | |
|
频率 |
290 |
290 |
390 |
Hz |
- |
- |
- |
Hz | |
.jpg)
.jpg)
